






230 The Donway West Condos
Price Coming Soon
- Developer:Options for Homes and Deltera Inc.
- City:North York
- Address:230 The Donway West, Toronto, ON
- Postal Code: M3B 2V8
- Type:Condo
- Status:Upcoming
- Occupancy:TBD
Project Details
The most anticipated preconstruction project in North York.
230 The Donway West Condos is a new condo and townhouse community by Options for Homes and Deltera Inc. currently in preconstruction at 230 The Donway West, Toronto. 230 The Donway West Condos has a total of 271 units.
Welcome to the future of Donway West
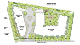
This redevelopment proposes to provide the congregation a modern, efficient building and a strengthened financial position, expand park space and make home ownership more attainable to the community.
In order to maintain congregational sustainability, The Donway Covenant United Church (DCUC) congregation has voted to partner with non-profit housing developer Options for Homes to redevelop its church property with a new sanctuary, multi-purpose facility, and an affordable ownership housing development.
The proposed plan includes the replacement of all buildings on site with a new building, terracing from three to six storeys, which will incorporate a new church sanctuary, and multi-purpose facility for the DCUC.
Source: Options for Homes
Builder's Website: https://optionsforhomes.ca/
Deposit Structure
TBA
Floor Plans
Facts and Features
- Green Space
- Easy access to the major highways
- Nearby Parks,
- Schools,
- Restaurants
- Shopping
- Outdoor Fitness Area
- Open Lawn
- Children's Play Area
Latest Project Updates
Location - 230 The Donway West Condos
Note: The exact location of the project may vary from the address shown here
Walk Around the Neighbourhood
Note : The exact location of the project may vary from the street view shown here
Note: Homebaba is Canada's one of the largest database of new construction homes. Our comprehensive database is populated by our research and analysis of publicly available data. Homebaba strives for accuracy and we make every effort to verify the information. The information provided on Homebaba.ca may be outdated or inaccurate. Homebaba Inc. is not liable for the use or misuse of the site's information.The information displayed on homebaba.ca is for reference only. Please contact a liscenced real estate agent or broker to seek advice or receive updated and accurate information.

230 The Donway West Condos is one of the condo homes in North York by Options for Homes and Deltera Inc.
Browse our curated guides for buyers
230 The Donway West Condos is an exciting new pre construction home in North York developed by Options for Homes and Deltera Inc., ideally located near 230 The Donway West, Toronto, ON, North York ( M3B 2V8). Please note: the exact project location may be subject to change.
Offering a collection of modern and stylish condo for sale in North York, 230 The Donway West Condos pricing details will be announced soon.
Set in one of Ontario's fastest-growing cities, this thoughtfully planned community combines suburban tranquility with convenient access to urban amenities, making it a prime choice for first-time buyers , families, and real estate investors alike. . While the occupancy date is TBD, early registrants can now request floor plans, parking prices, locker prices, and estimated maintenance fees.
Don't miss out on this incredible opportunity to be part of the 230 The Donway West Condos community — register today for priority updates and early access!
Frequently Asked Questions about 230 The Donway West Condos

Send me pricing details
The True Canadian Way:
Trust, Innovation & Collaboration
Homebaba hand in hand with leading Pre construction Homes, Condos Developers & Industry Partners











4HUNDRED EAST MALL Urban Townhomes
400 The East Mall, Toronto, ON
Project Type: Condo
Developed by Haven Developments
Occupancy: Completed Jul 2021
From$729K

NY Walk Towns
57 Linelle Street, North York, ON, Canada
Project Type: Condo
Developed by Menkes Development
Occupancy: 2025
From$2.1M

Townhomes at Crosstown
844 Don Mills Road, Toronto, ON
Project Type: Townhome
Developed by Aspen Ridge Homes
Occupancy: Est. Compl. Nov 2025
From$1.6M

Club 285 Condominiums
412 Marlee Ave, North York, ON
Project Type: Condo
Developed by Altree Developments
Occupancy: TBA
Pricing available soon

The Vic Towns
The Vic Towns Community | 1682 Victoria Park Avenue, Toronto, ON
Project Type: Townhome
Developed by Solotex Group
Occupancy: TBD
