






Garden on the Bay Condos
Price Coming Soon
- Developer:95 Developments Inc.
- City:Ajax
- Address:282 Monarch Avenue, Ajax, ON, Canada
- Postal Code:L1S 2G6
- Type:Condo
- Status:Upcoming
- Occupancy:TBD
Project Details
The most anticipated preconstruction project in Ajax.
Garden on the Bay Condos is a new pre-construction condo development by 95 Developments. Coming soon to 282 Monarch Avenue in Ajax.
Highlights at Garden on the Bay Condos
Located just south of Highway 401. This is a popular neighbourhood because of nearby schools and parks. The streets are traffic-free and bike-friendly. Along Harwood Avenue and Salem Road, there are also numerous shopping opportunities. Just minutes from downtown Ajax's excellent facilities such as shopping and dining, the Ajax GO Station, Highway 401, and other attractions.
The Highway 401 is easily accessible.
RioCan Durham Centre – an open-air shopping mall with major stores such as Walmart, Home Depot, Canadian Tire, Costco, Marshalls, Winners, HomeSense, SportChek, and Chapters.
The St. Francis Centre is an arts venue housed in a historic church.
Lakeridge Health Ajax and Pickering Hospital is a hospital in downtown Ajax.
Pickering Casino Resort is located in Pickering, Ontario.
Ajax has a lovely coastline that is easily open to the general public.
One of Ontario's fastest rising municipalities
Builder's Website: https://www.95development.com/
Deposit Structure
TBA
Floor Plans
Facts and Features
- Green Space
- Easy access to the major highways
- Nearby Parks,
- Schools,
- Restaurants,
- Shopping and many more.
Latest Project Updates
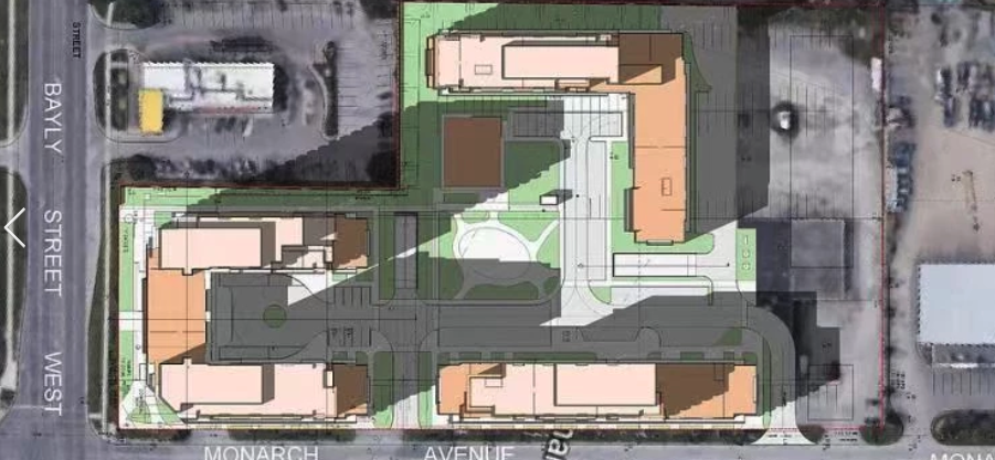
Location - Garden on the Bay Condos
Note: The exact location of the project may vary from the address shown here
Walk Around the Neighbourhood
Note : The exact location of the project may vary from the street view shown here
Note: Homebaba is Canada's one of the largest database of new construction homes. Our comprehensive database is populated by our research and analysis of publicly available data. Homebaba strives for accuracy and we make every effort to verify the information. The information provided on Homebaba.ca may be outdated or inaccurate. Homebaba Inc. is not liable for the use or misuse of the site's information.The information displayed on homebaba.ca is for reference only. Please contact a liscenced real estate agent or broker to seek advice or receive updated and accurate information.

Garden on the Bay Condos is one of the condo homes in Ajax by 95 Developments Inc.
Browse our curated guides for buyers
Garden on the Bay Condos is an exciting new pre construction home in Ajax developed by 95 Developments Inc., ideally located near 282 Monarch Avenue, Ajax, ON, Canada, Ajax (L1S 2G6). Please note: the exact project location may be subject to change.
Offering a collection of modern and stylish condo for sale in Ajax, Garden on the Bay Condos pricing details will be announced soon.
Set in one of Ontario's fastest-growing cities, this thoughtfully planned community combines suburban tranquility with convenient access to urban amenities, making it a prime choice for first-time buyers , families, and real estate investors alike. . While the occupancy date is TBD, early registrants can now request floor plans, parking prices, locker prices, and estimated maintenance fees.
Don't miss out on this incredible opportunity to be part of the Garden on the Bay Condos community — register today for priority updates and early access!
Frequently Asked Questions about Garden on the Bay Condos

Send me pricing details
The True Canadian Way:
Trust, Innovation & Collaboration
Homebaba hand in hand with leading Pre construction Homes, Condos Developers & Industry Partners











Vidal Condominiums
101 Bayly Street East, Ajax, ON, Canada
Project Type: Condo
Developed by Matrix Development Group
Occupancy: 2024
Pricing available soon

Garden on the Bay Condos
282 Monarch Avenue, Ajax, ON, Canada
Project Type: Condo
Developed by 95 Developments Inc.
Occupancy: TBD
Pricing available soon

Lake Pointe Condos
253 Lake Driveway West, Ajax, ON
Project Type: Condo
Developed by Your Home Developments
Occupancy: TBD
Pricing available soon

Eagle Woods
Sharplin Drive & Denny Street, Ajax, ON
Project Type: Detached
Developed by John Boddy Homes
Occupancy: TBD
Pricing available soon

New Forest at Duffin’s Creek
1192 Church Street North, Ajax, ON
Project Type: Townhome
Developed by Haber Homes
Occupancy: TBD
